ReRoom

客廳,
海濱微風

平衡

原始圖片
Source Image
上傳於
生成圖片(768x936)
source
0.19%
Result Images
Result Images
Result Images

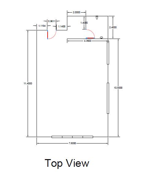
An incredibly lifelike, richly detailed, photorealistic aerial view of a modern beauty salon interior, bathed in the warm, inviting glow of ambient lighting that suggests a late afternoon summer sun, creating a serene and welcoming atmosphere. The clean, contemporary style is evident in the crisp white marble floors that reflect the light, complemented by the natural warmth of oak wood accents strategically placed throughout. Matte black metal details add a touch of sophisticated contrast to the minimalist furnishings. Along the left wall, six sleek hair styling stations are precisely spaced, each featuring long, reflective mirrors illuminated by linear LED lighting, casting bright, clean light onto the stations. To the right, the backwash area is clearly defined with two professional shampoo stations, a face wash basin, and a tidy arrangement of overhead wall-mounted cabinets alongside lower storage units. Adjacent to this, a private, well-lit pedicure room, measuring approximately 2.5m by 2.5m, is comfortably furnished with a 1.3m pedicure chair and ample storage. The entrance area is organized with a modern reception desk boasting sleek storage drawers, and a stylish product display wall. A comfortable waiting area, outfitted with plush sofas and a chic coffee table, invites clients to relax. Further into the salon, a functional staff room includes a sofa, dining table, a compact fridge, microwave, and a water cooler, hinting at a space designed for comfort. A dedicated coffee corner with a mini-fridge and shelves for tea and coffee supplies adds a thoughtful touch. The overall spatial planning is meticulously executed, showcasing a logical flow and an efficient use of the approximate 7.6m by 11.4m area, with potential for an additional private treatment room based on the layout. The implied coastal breeze provides a subtle, refreshing undertone to the meticulously designed space.