

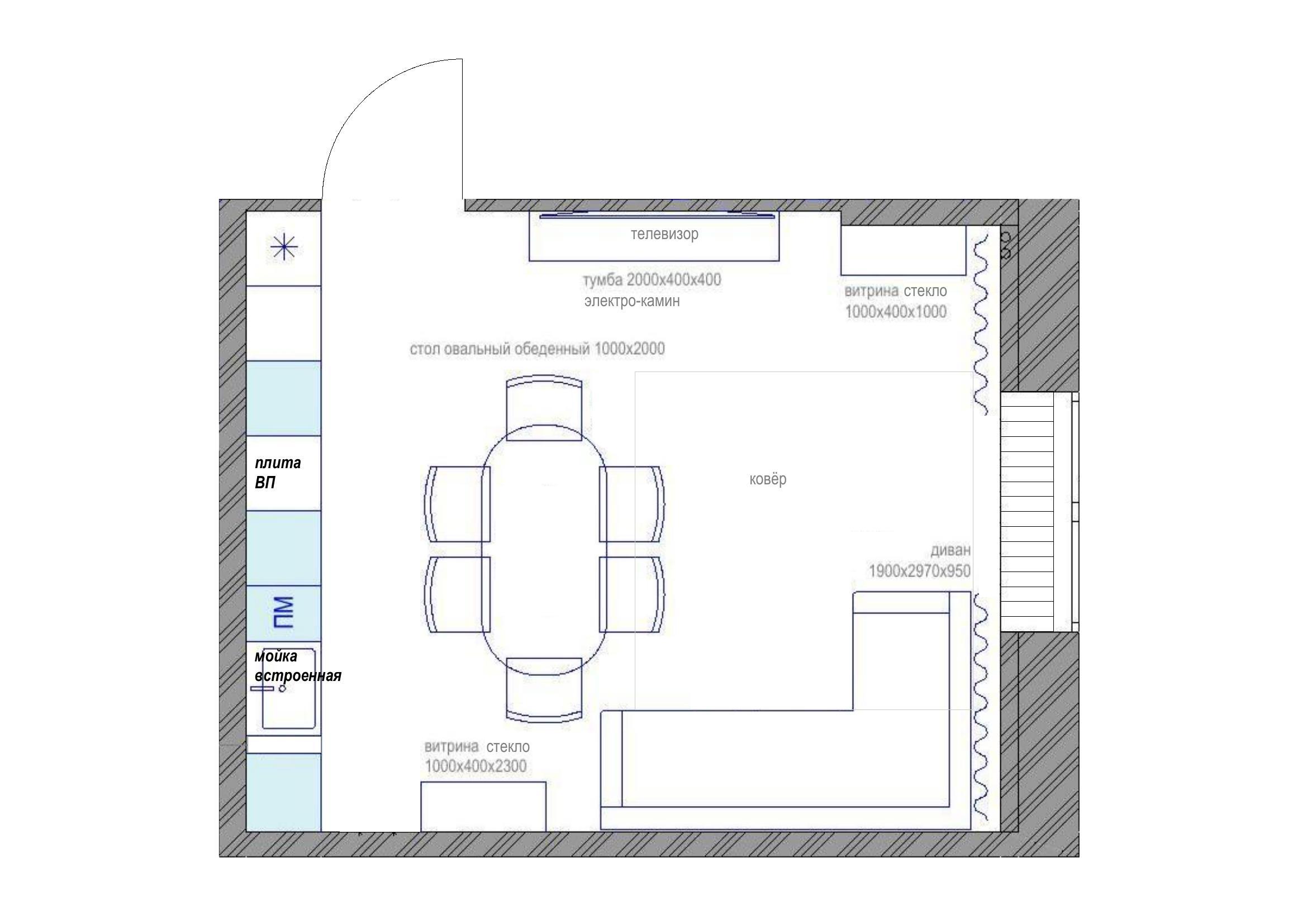
An incredibly lifelike, richly detailed, photorealistic floorplan photo of a Mediterranean-style kitchen-living area bathed in natural light, suggesting a bright, airy midday in summer. Beautifully rendered in light, natural tones, the space is dominated by a floor-to-ceiling panoramic window, draped with sheer curtains and delicate tulle that gently diffuse the sunlight. Beneath the window, a sleek linear convector blends seamlessly into the floor, topped with a slatted grille running the length of the window frame. The dining area features an oval table set for a meal with plates, forks, and knives, its transparency allowing a view of a crystal vase brimming with white and pink flowers at its center. Adjacent to this, a plush, high-pile rug in natural hues lies beneath a low coffee table in front of a comfortable sofa adorned with a knitted throw and accent pillows. Opposite the sofa, a TV perched atop a cabinet housing an electric fireplace creates a cozy focal point. The walls are a soft, light beige, accented with subtle, matching moldings that add architectural detail. The flooring is a handsome natural oak parquet laid in a classic herringbone pattern. Elegant glass display cabinets filled with tableware line parts of the room, reflecting the light and contributing to the overall sense of sophistication. The kitchen area, though not fully detailed in this view, is implied to be in coordinating light tones, maintaining the serene and inviting Scandinavian sanctuary atmosphere. The perspective captured is akin to an architect's rendering brought to life, offering a clear, comprehensive view of the room's layout and furnishings.